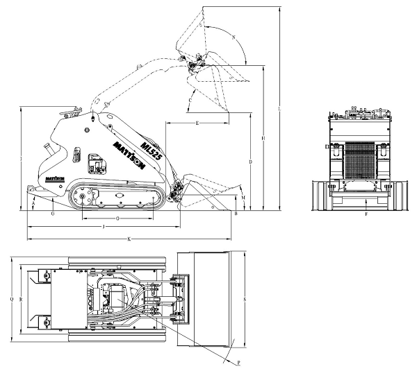
|
尺寸 |
英制 |
公制 |
|
|
A |
离去角 |
20° |
20° |
|
B |
铲斗铰接点离地最小距离 |
7 in |
176 mm |
|
C |
卸料角度 |
37° |
37° |
|
D |
卸料高度 |
51 in |
1272 mm |
|
E |
卸料距离 |
33 in |
833 mm |
|
F |
离地间隙 |
6 in |
141 mm |
|
G |
脚踏板离地间隙 |
7 in |
171 mm |
|
H |
铲斗铰接点离地最大距离 |
74 in |
1869 mm |
|
I |
机器高度 |
53 in |
1338 mm |
|
尺寸 |
英制 |
公制 |
|
|
J |
机器不带辅具的长度 |
77 in |
1959 mm |
|
K |
机器带标准铲斗的长度 |
103 in |
2619 mm |
|
L |
机器最大操作高度 |
103 in |
2626 mm |
|
M |
铲斗铰接点离地最小时反转角度 |
21° |
21° |
|
N |
铲斗铰接点离地最大时反转角度 |
94° |
94° |
|
O |
轮距 |
36 in |
918 mm |
|
P |
机器带标准铲斗时的最小回转半径 |
62 in |
1575 mm |
|
Q |
机器宽度 |
43 in |
1103 mm |
|
R |
轨距 |
36 in |
903 mm |
|
S |
带标准铲斗时的宽度 |
49 in |
1250 mm |

